Wkładka cylindryczna na 5 kluczy z funkcją antypaniczną
Długość wkładki: 45/55
Dormas: 92/65
Opcja dodatkowa: elektrozaczep
Wartość cieplna:
Drzwi bez szyby Ud – 0,68 W/m2K
Drzwi z szybą: Ud – 0,89 - 1,09 W/m2K w zależności od modelu przeszklenia
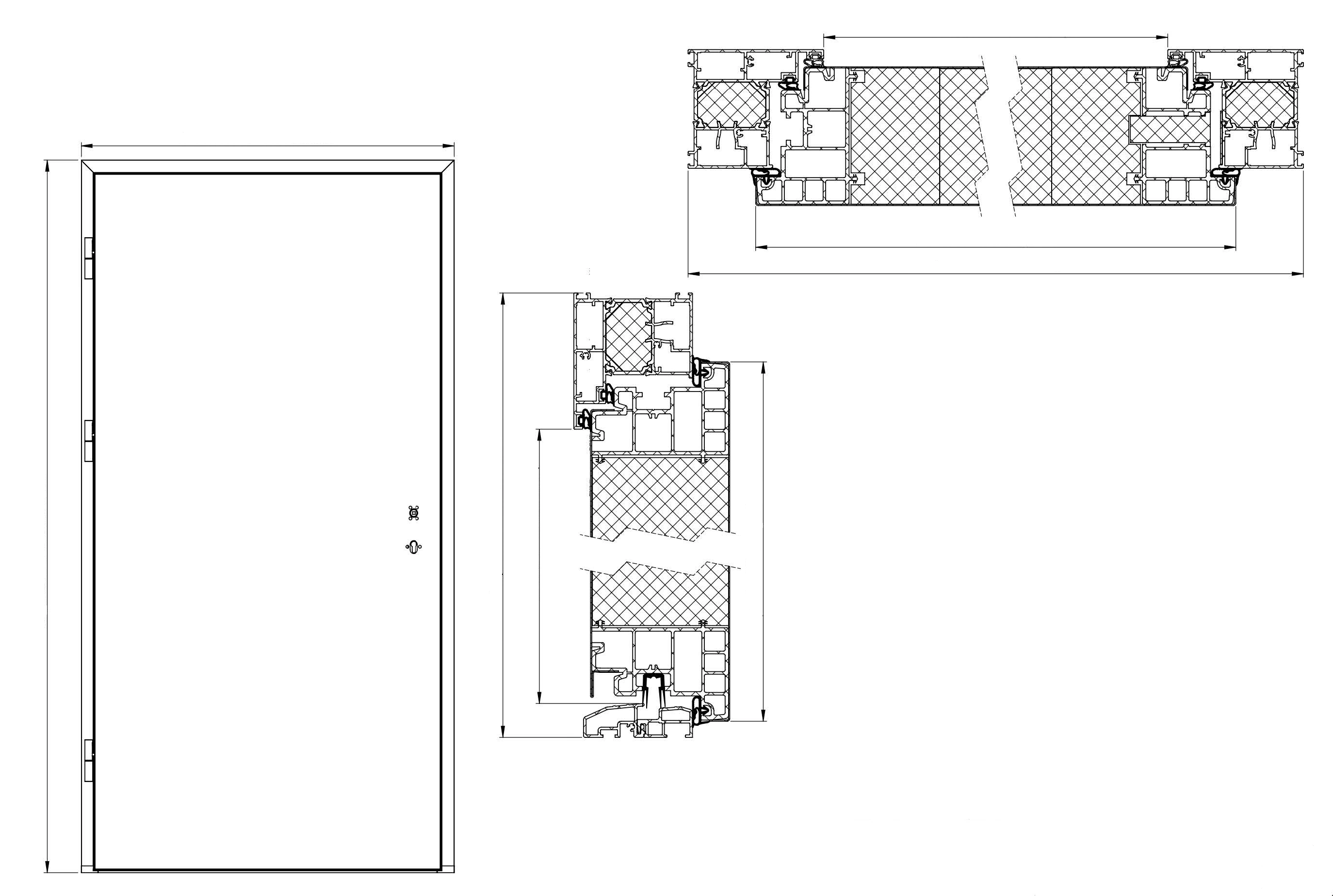
Drzwi stalowo aluminiowe jednoskrzydłowe DS82 dostępne są w standardowych wymiarach. Oferowane drzwi można wyposażyć w dostawkę boczną (doświetle) lub świetlik (naświetle).
Ościeżnica wykonana jest z profilu aluminiowego z izolacją termiczna, która zabezpiecza przed przemarzaniem. Profil pokryty jest folią PVC odporną na promienie UV i warunki atmosferyczne. Zastosowanie listew poszerzających umożliwia dopasowanie wymiarów ramy do otworu w murze, zarówno na szerokość jak i wysokość.
Skrzydło drzwiowe o grubości 82mm wypełnione jest XPS-em (styrodur). Poszycie stanowią blachy ze stali nierdzewnej pokryte folią PVC odporną na UV i warunki atmosferyczne. DS82 dostępne są w kolorze antracyt, biały, orzech, złoty dąb, winchester i dąb turner. Izolacyjność termiczna wynosi 0,68 W/m²K bez szyby i 0,89 - 1,09 W/m²K z szybą, w zależności od modelu szyby. Drzwi w standardzie wyposażone są w 5-punktowy zamek hakowy Winkhaus, zawiasy 3D z 6 bolcami zabezpieczającymi przed wyważeniem, 3 uszczelki systemowe - 2 w ościeżnicy i 1 w skrzydle oraz próg z izolacją termiczną. Jeżeli podoba Ci się pochwyt zwany inaczej antabą możesz wybrać prostokątny lub okrągły, inox lub czarny. Jeżeli natomiast wolisz standardowe rozwiązania możesz zamówić drzwi z klamką srebrną lub czarną po obu stronach skrzydła. Oferowane drzwi dostępne są wielu ciekawych modelach. Możesz wybrać drzwi pełne bez przeszklenia lub przeszklone czyli z szybą. Niezależnie od wybranego modelu przeszklenia można wybrać szybę przezroczystą, satynową (mleczną), przyciemnioną w kolorze grafitowym, odbijającą reflex również w kolorze grafitowym oraz popularne lustro weneckie.
DS82
880mm x 2080mm
1000mm x 2000mm
1000mm x 2100mm
1100mm x 2100mm
1100mm x 2200mm
| szerokość całkowita |
wysokość całkowita |
|---|---|
| 880 | 2080 |
| 1000 | 2000 |
| 1000 | 2100 |
| 1100 | 2100 |
| 1100 | 2200 |
| szerokość skrzydła |
wysokość skrzydła |
świetło ościeżnicy |
|---|---|---|
| 800 | 2030 | 720x2000 |
| 920 | 1950 | 840x1920 |
| 920 | 2050 | 840x2020 |
| 1020 | 2050 | 940x2020 |
| 1020 | 2150 | 940x2120 |
Naświetla boczne i górne połączone z drzwiami pełnią funkcję zarówno dekoracyjną, jak również pozwalają rozjaśnić wnętrze naturalnym światłem.
dostępne kolory przeszkleń: SATYNA, CIEMNE W KOLORZE GRAFITOWO SZARYM, ODBIJAJĄCE SZARE - SZKŁO REFLEKSYJNE, SZKŁO TRANSPARENTNE - PRZEZROCZYSTE
pakiet: 4 szybowy z ciepłymi ramkami dystansowymi
bezpieczna szyba: VSG z obu stron
dostępne szerokości: 300 mm - 1200 mm
opcja dodatkowa: naświetle górne (tylko w wersji bez doświetli bocznych)
Zamek: Winkhaus 5 punktowy
Wkładka cylindryczna na 5 kluczy z funkcją antypaniczną
Długość wkładki: 45/55
Dormas: 92/65
Opcja dodatkowa: elektrozaczep
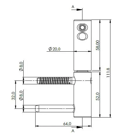
ilość zawiasów: 3
rodzaj: dwudzielne, wkręcane
wymiar: średnica 20 mm
bolce antywyważeniowe: 6 szt
regulacja: 3D (docisk do uszczelki, na boki i góra dół)
w zestawie: osłonki na zawiasy
odkopnik / odbój w modelach: 00, 02, 20, 22
poszerzenia ramy: 25 mm, 50 mm, 100 mm, listwa podprogowa: xps - wysokość 30 mm, długość 110 cm / sztuka
wizjer, elektrozaczep z funkcją dzień / noc




























































Producent gwarantuje naprawę lub wymianę towaru do 24 miesięcy od daty zakupu. Skontaktuj się ze sklepem za pośrednictwem formularza reklamacji aby zamówić kuriera który odbierze towar z Twojego domu.